BM5550 shophouse house plan that has everything from a large garage/shop to a gorgeous living space that can be decorated in farmhouse, elegant or country style. The choices are endless with this home. The garage has room for an RV if needed or you can design it with a simple 2, 3 or 4 car garage/shop. The living space is as inviting as anything you have ever seen. A wrap around porch gives you plenty of living space and outdoor dining areas are abundant. A two story vaulted great room can have a flat ceiling or vaulted based on the trusses you use. The open living space will allow you to spend time with family no matter what room they are in on the first floor. A large two story fireplace in the living room will be the focal point as you enter this amazing home. The siding and roof color choices are endless. Let’s take your dream floor plan and make it a reality. Our collection of Shophouse floor plans is a variety of one story plans and two story house plans that are easy to build.
Our new Accelerated Custom Design program can get a first draft in your hands in as little as 21 days.
3D renditions & BuildMax plans copyright 2021
Architectural works are protected
by U.S. copyright law, specifically
by 17 U.S. Code § 102(8).
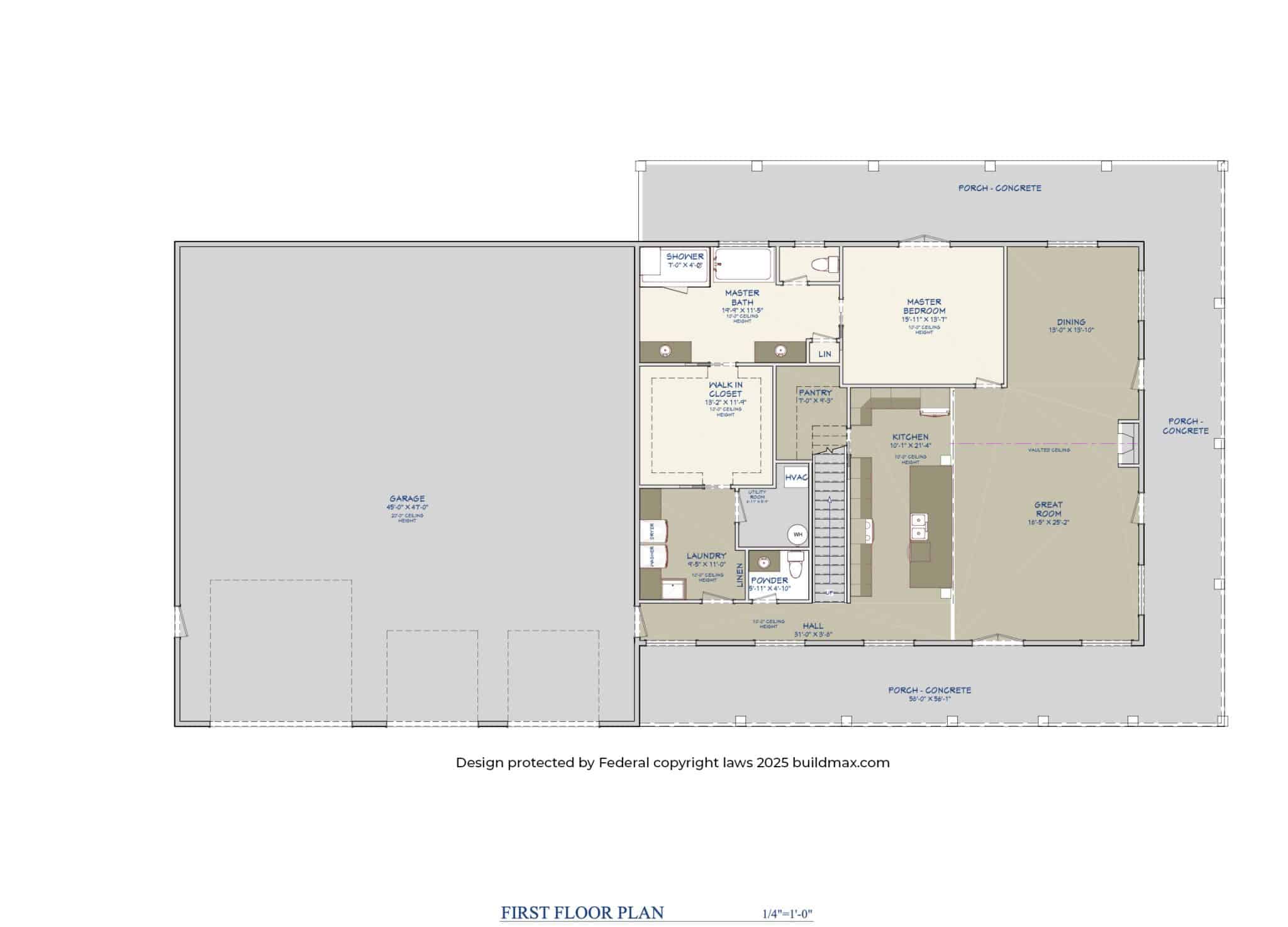
Gross Living Area Sq Ft: 3302
Total Area Sq Ft (porches, garage, etc.): 6749
Shop/RV Garage: 46×48 (2208 SF)
House: 40’X50′ (plus porches)
Using standard trusses will give you a 20′ ceiling height
Shop has 20′ exterior walls. (BM555-L has 14′ walls)
Great room Vaulted Ceilings: near 30 ft. high
Using standard trusses will give you a 20′ flat ceiling height
Foundation Type: slab
Overall length w/ porches: 104′
Optional foundations: crawl, basement require modification
Bedrooms: 4
Bathrooms: 3.5
Master Suite Square Footage: 176
Bathroom Including Large Shower and Double Vanity
Walk-In Closets
Spacious Reach-in Closet
Living/Kitchen combined Square Footage: 312
Pantry: hidden pantry
FRAMING SPECIFICATIONS
Exterior framing: 2×6 wood
Roof framing: Truss
Siding: Metal
Roofing: Metal
All plans are designed as conventional wood or conventional steel stud framing (2×6 exterior, 2×4 interior) using a monolithic slab foundation. Post frame foundation and post framing details will require a modification fee. Our plans are not designed in red iron steel. If you plan to use a red iron steel company, you can purchase our licensed plan and the red iron company will use our plan with their software to produce the red iron shell package. CAD files are available for an extra fee if a steel manufacturer, post frame company or local engineer requires them.
-First Floor Plan
-Second Floor Plan
-Roof Plan
-Front and Rear Elevation
-Right and Left Elevation
-First & Second Floor Electrical Plan
-First & Second Floor Plumbing Plan
-Foundation Plan
-Roof Framing Plan
-Second Floor I-Joist Plan
-Doors & Windows Schedule
All house plans on buildmax.com were designed to accommodate the local codes and requirements at the time & location the original house was designed, these may not fall directly in line with your local regulations, and it is your responsibility to follow up with your local building department to ensure compliance is accomplished. Photo and video renditions may differ from the actual plans based on many factors, including truss layout, exterior and interior finishes. All stock, custom or modified plan purchases are final, and we cannot refund or exchange any plan after date of purchase.
In addition to the house plans you order; many jurisdictions require a site plan be drawn up that indicates where on the property the structure will be placed. Some areas of the country require specific beam size for roof loads depending upon snowfall in the region. If your lot is not tied to a sanitary sewer system you may also need a septic design to be drawn by a licensed professional. Many areas now have area-specific energy codes that also must be followed to certain specifications. There are several free energy code calculators online that your local building department may accept. Your builder may also be able to help with this.
In some regions, there are additional steps you will need to take to insure your house plans follow local codes. Some areas of North America have extremely strict structural engineering requirements. Examples of this would be things like areas of California and the Pacific Coast that are on active fault lines and more prone to natural disasters, areas at risk for tropical storms and hurricanes such as the East coast, the Gulf coast & the Carolinas. Tornado Alley in the Midwest will most certainly have interesting structural engineering requirements set in place. Also New York, New Jersey, Nevada, and parts of Illinois require review by a local professional as well. If you are building in these areas, count on having to hire a state licensed structural engineer to look over and approve the designs and potentially provide additional drawings and recalculations required by your building department. Pretty much every region of the United States has some type of specific requirement due to natural elements, you may need to leave room in your budget for the purchase CAD drawings so an engineer or architect can make the appropriate changes needed. Building departments typically have a print-out they will provide you listing all the items they require to obtain a building permit.
Something else to be aware of with stock plans, they do not have a professional stamp attached. If your building department requires one, this means they will only accept a stamp from a professional that is licensed in the state where you plan to build. In this case, you will need to take your house plans to a local engineer or architect for a full review and a stamp showing the plans have been approved by a state licensed architect or engineer. In addition to this, plans which are used to construct homes in the state of Nevada are required to be drawn by a licensed Nevada architect. If you are not fully aware of all the Local regulations just go down and check with your local building department, they will be able to provide you with every code requirement and specification you need for your plans to be 100% compliant with the local regulations in your area.


